автоматический твердотопливник
-
Evgeniy-free
- Сообщения: 392
- Зарегистрирован: 02 дек 2012, 07:30
- Откуда: Сибирь
Re: автоматический твердотопливник
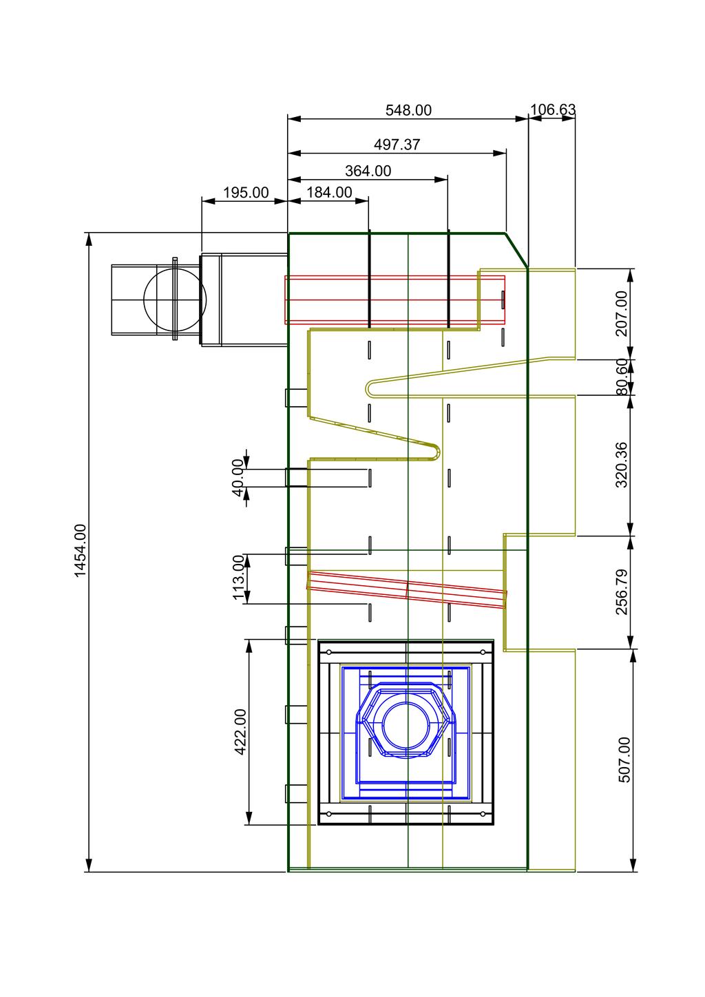
Так как тема твёрдотопливника есть а не одного чертежа и фото котла нет, поделюсь своим будущим котлом. Это будет гибрид дефро на 25кВт и зота (стаханов), размеры должны совпадать с дефро на 90% за исключением объединения топочной и загрузочной дверей, я их объединил как у зоты в одну побольше. Информации по этим котлам мало в части размеров как самих котлов так и их горелок, а у кого эти котлы есть делиться их размерами не хотят, особенно размерами горелок и её посадочного места, поэтому пришлось всё делать по фотографиям и размерам из документации котлов. Отсюда и будут не критичные различия в размерах, т.к масштаб фоток с мануала пришлось корректировать. Удалось узнать что дефро использует сталь теплообменника толщиной 6мм, и внешнюю стенку толщиной 4мм, это для котлов до 70 кВт, так и я сделаю.
Пока что нарисовал только внутреннюю часть котла без горелки, сейчас начну её дорисовывать. Если есть критика желательно поделиться мыслями, пока не начал его делать! Ну и фото:
Пока что нарисовал только внутреннюю часть котла без горелки, сейчас начну её дорисовывать. Если есть критика желательно поделиться мыслями, пока не начал его делать! Ну и фото:
Re: автоматический твердотопливник
Внимательно следим.Evgeniy-free писал(а):Так как тема твёрдотопливника есть а не одного чертежа и фото котла нет, поделюсь своим будущим котлом. Это будет гибрид дефро на 25кВт и зота (стаханов),...Если есть критика ....
Re: автоматический твердотопливник
Конструкция довольно интересная и сложная в изготовлении. Впечетляет.
Насколько рассмотрел, часть на фотоdownload/file.php?id=3559&t=1 download/file.php?id=3558&t=1, представляет собой и саму топку, и поверхность нагрева (внутреннюю часть водяной рубашки). По сварке, рекомендация остается в силе, набросал пару картинок для лучшего понимания. Правый шов на картинке выполняется очень быстро, а при сноровке и качественно, но в данном случае считаю его (как если б для себя делал) неприемлемым. Левый же гарантировано надежный, желательно, что бы зазорчик был небольшой, если же нет, то добавить тока (напряжения в полуавтомате), чтоб внутренние кромки чуть оплавлялись при сварке. Красным показан наплавленный металл.
По самому металлу - толщины неплохо подобраны. В наших краях сейчас варят твердотопливные котлы, кто только горазд и в основном из Ст3, толщиной 3мм и на топку и на рубашку, срок службы которых предсказать затруднительно.
Не знаю как будет прогреваться днище, с горением пеллет мало знаком, потому умолчу.
Сама сталь в промышленных котлах применялась Ст20, и 15ГС. Себе на поверхность нагрева взял бы как минимум сталь 20, 15ГС - немного капризная и варить рекомендуется уонями. То же относится и к трубам, которые проходят через топку.
Трубы в нижней части топки, насколько понял выполняют несколько функций в виде нагрева и конвекции теплоносителя, а также ребра жесткости. Их порекомендую выпустить на 4-6мм, что и указал на картинке, обварить как показал красным. Для дальнейшего монтажа наружной части рубашки, порекомендую на ровных больших площадях предусмотреть размещение крепежей, которые соединят поверхность нагрева с наружной частью водяной рубашки. Наружная часть тоньше, металл можно использовать дешевле, а для избежания деформаций стоит просто приварить штыри, примерно как на картинке. Тем более что система будет закрыта!? с поддержанием давления до 1.5атм и лишняя жесткость не повредит.
Насколько рассмотрел, часть на фотоdownload/file.php?id=3559&t=1 download/file.php?id=3558&t=1, представляет собой и саму топку, и поверхность нагрева (внутреннюю часть водяной рубашки). По сварке, рекомендация остается в силе, набросал пару картинок для лучшего понимания. Правый шов на картинке выполняется очень быстро, а при сноровке и качественно, но в данном случае считаю его (как если б для себя делал) неприемлемым. Левый же гарантировано надежный, желательно, что бы зазорчик был небольшой, если же нет, то добавить тока (напряжения в полуавтомате), чтоб внутренние кромки чуть оплавлялись при сварке. Красным показан наплавленный металл.
По самому металлу - толщины неплохо подобраны. В наших краях сейчас варят твердотопливные котлы, кто только горазд и в основном из Ст3, толщиной 3мм и на топку и на рубашку, срок службы которых предсказать затруднительно.
Не знаю как будет прогреваться днище, с горением пеллет мало знаком, потому умолчу.
Сама сталь в промышленных котлах применялась Ст20, и 15ГС. Себе на поверхность нагрева взял бы как минимум сталь 20, 15ГС - немного капризная и варить рекомендуется уонями. То же относится и к трубам, которые проходят через топку.
Трубы в нижней части топки, насколько понял выполняют несколько функций в виде нагрева и конвекции теплоносителя, а также ребра жесткости. Их порекомендую выпустить на 4-6мм, что и указал на картинке, обварить как показал красным. Для дальнейшего монтажа наружной части рубашки, порекомендую на ровных больших площадях предусмотреть размещение крепежей, которые соединят поверхность нагрева с наружной частью водяной рубашки. Наружная часть тоньше, металл можно использовать дешевле, а для избежания деформаций стоит просто приварить штыри, примерно как на картинке. Тем более что система будет закрыта!? с поддержанием давления до 1.5атм и лишняя жесткость не повредит.
Re: автоматический твердотопливник
У меня в гараже буржуйка из бытовых пропан-бутановых баллонов. Не интересовался, какая там сталь, но как только её делал, мне подруку пи...дели, мол этого тебе на зиму от силы. Последняя версия уже пять лет работает и на прогар намека нету. В первой версии колесники сгорали, топка воркуг не горит... Это не рекомендации, это наблюдение из жизни. При желании можно разрезать, развернутьи кроить как нужно. Варится отлично.plit писал(а): В наших краях сейчас варят твердотопливные котлы, кто только горазд и в основном из Ст3, толщиной 3мм и на топку и на рубашку, срок службы которых предсказать затруднительно.
-
Evgeniy-free
- Сообщения: 392
- Зарегистрирован: 02 дек 2012, 07:30
- Откуда: Сибирь
Re: автоматический твердотопливник
В фирмах по продажам пишут что обычная ст.3пс, хотя может это новые так делают а в старых что-то другое использовали. В интернете много поделок из пропановских баллонов, типа печей, мангалов, видел даже печь на отработке так там баллон аж лилового цвета становится а окалины на стенках не видать.Komrad писал(а):какая там сталь
Вот тут большого выбора нет, у нас продают только ст.3пс и 09г2с. Смотрел ролик как делают бытовые котлы, не помню марку но у нас в россии, так там в интервью мастер сказал что используют сталь 09г2с. Давненько на форумах читал что котловая сталь (20К) отличается только пластичностью от обычной, то есть её проще и безопасней гнуть на холодную без образования микротрещин. Как я понял коррозия от воды у них примерно одинаковая.plit писал(а):Сама сталь в промышленных котлах применялась Ст20, и 15ГС
Это так и делаю, рёбра тоже сделал на чертеже, только очень много наверное, рёбра находятся 180х180 мм друг от друга из полоски шириной 40мм металла 4мм!plit писал(а):порекомендую выпустить на 4-6мм
Re: автоматический твердотопливник
Насколько мне известно для пропановских баллонов применялись стали от Ст3 до Ст15. У самого, добрый десяток примеров долгожительства, мангалов, буржуек, котлов для бани, у последних колосники из арматуры Ф=12 долго не живут, ставили 20-ку и без проблемKomrad писал(а):Это не рекомендации, это наблюдение из жизни.
Для котлов работающих при температуре до 120 градусов (температура теплоносителя) применяют Ст2, Ст3. Чего кому и как применять каждый сам выберет. Судя по своему опыту применения Ст3, не доверю ей работать поверхностью нагрева в такой сложной конструкции, как и шовным трубам.Evgeniy-free писал(а):Вот тут большого выбора нет, у нас продают только ст.3пс и 09г2с.
При определенных условиях вода сьедает новую трубу за неделю до фольги, бывает местами (язвами), а бывает и полностью. Картинка в качестве страшилки
Чтоб не казаться умным и утверждать чем отличаются и какую применять сталь, смотрите характеристики в справочниках, или вот по ссылкам Ст20, 09Г2С, Ст3пс (не реклама, просто первое, что подвернулось).
Для ребер расстояние не большое, в самый раз. Ждем полной картины!Evgeniy-free писал(а): только очень много наверное, рёбра находятся 180х180 мм друг от друга
-
Evgeniy-free
- Сообщения: 392
- Зарегистрирован: 02 дек 2012, 07:30
- Откуда: Сибирь
Re: автоматический твердотопливник
У нас будет максимум 90 градусов, это уже критическая температура.plit писал(а):Для котлов работающих при температуре до 120 градусов
Есть такие проблемы в котельных и бойлерных, сейчас экономят и мало где делают очистку воды от кислорода, а без этого трубы и прочее служит не долго. Это мне объясняли мужики с бойлерной подогрева воды с ТЭЦ, у них эта установка занимала весь второй этаж и потребляла много энергии.plit писал(а):При определенных условиях вода сьедает новую трубу за неделю до фольги, бывает местами (язвами), а бывает и полностью.
Как раз мнения мне очень интересны, тем более если есть опыт применения разных типов сталей. Сам в размышлениях какую именно выбрать, по ссылкам выше пишут: "Марка стали 09Г2С находит свое применение при изготовлении деталей сварных металлоконструкций, работающих в широком интервале температур от -70 до +425 °С. Это детали паровых котлов, а также других аппаратов, работающих в условиях высокого давления. Сталь 09Г2С применяется в судостроении, химической промышленности, а также в производстве труб"plit писал(а):Чтоб не казаться умным и утверждать чем отличаются и какую применять сталь
Вроде как должна подойти лучше чем ст3. ???
Кстате, сейчас откопал в огороде трубу на 110 мм внешний диаметр стенка 8мм, попробовал к ней приварить уголок 25мм электродом уони 13\55, 0к 46.00 и мр3с, результат одинаков, при изломе около шовная зона со стороны трубы не трескается, а уголок рвёт и металл слоится. Думаю, труба не из простой стали, лежит давно в снегу а ржавчины как на обычной трубе нет, только коррозия какая-то. Хочу её применить на колосники и теплообменник чтоб немного сэкономить!
Re: автоматический твердотопливник
Есть еще такое понятие "блуждающие токи". Как я понимаю, разность потенциалов вызывает "электрическую эрозию" металла. Это можно наблюдать на больших и средних объектах- трубы "съедаются" в определенных местах.Evgeniy-free писал(а):
Есть такие проблемы в котельных и бойлерных, сейчас экономят и мало где делают очистку воды от кислорода, а без этого трубы и прочее служит не долго. Это мне объясняли мужики с бойлерной подогрева воды с ТЭЦ, у них эта установка занимала весь второй этаж и потребляла много энергии.
-
Evgeniy-free
- Сообщения: 392
- Зарегистрирован: 02 дек 2012, 07:30
- Откуда: Сибирь
Re: автоматический твердотопливник
Ну вот сам котёл почти готов, тут колосники для вида, на самом деле ещё не понятно какую трубу буду использовать т.к в наличии есть ещё цельнотянутая труба внешний диаметр 38мм и стенка 5мм, что будет тоньше стенок котла. Осталось нарисовать шнек и бункер ну и сделать раскрой чтоб посчитать метал!
Re: автоматический твердотопливник
Если интересно то мой выбор из Ст3 и 09Г2С однозначно 09Г2С, еще бы проволку под нее взял 08ГС или 08Г2С. Она относится уже к низколегированым сталям, а Ст3 к обычным конструкционным. Присадки в хим составе дают дополнительные "бонусы", а Ст3 не рекомендуется сваривать при температуре ниже -13 или -15 градусов, точно не помню, к котлу это не относится, но все же характеризует ее не с лучшей стороны.
Насчет трубы с "огорода" думаю, что диаметр большой у нее, эффективность нагрева снизится. Сравните, кстати, на искры трубу и уголок который приваривался к ней.
38-ая труба была бы идеальной, если б стенка потолще была. А бок у нее случайно не окрашен? Если окрашен,то возможно сталь низколегированная. Если труба 12хм или 12х1мф то можно спокойно ставить и с 5мм стенкой.
Одним из крайних варил бытовой котел из цельнотянутых труб Ст20, 60*4(коллектор) и 32*4(поверхность нагрева) под дрова, да и под уголь можно использовать.
Очистку воды от свободного кислорода и растворенного воздуха делают только для паровых котлов, которые турбины крутят. Установка зовется деаэратором. Делает воду и пар менее агрессивными к трубам, но только до конденсации, конденсат же жрет трубы, стыки, задвижки, крыльчатки насосов, не переборчив в еде
Также есть электрохимическая и кислородная коррозии, и та и другая штуки вредные. Блуждающие токи тоже вредные, но явление редкое, причиной которых вполне может быть близлежащая станция катодной защиты газопровода.
Красивые картинки, только с колосниками не пойму, они ведь размещаются под топливом и над днищем, а тут как понял под колосниками подразумеваются те самые трубы поперек топки, только загрузка топлива под трубами, или может чего не понимаю?
Насчет трубы с "огорода" думаю, что диаметр большой у нее, эффективность нагрева снизится. Сравните, кстати, на искры трубу и уголок который приваривался к ней.
38-ая труба была бы идеальной, если б стенка потолще была. А бок у нее случайно не окрашен? Если окрашен,то возможно сталь низколегированная. Если труба 12хм или 12х1мф то можно спокойно ставить и с 5мм стенкой.
Одним из крайних варил бытовой котел из цельнотянутых труб Ст20, 60*4(коллектор) и 32*4(поверхность нагрева) под дрова, да и под уголь можно использовать.
Очистку воды от свободного кислорода и растворенного воздуха делают только для паровых котлов, которые турбины крутят. Установка зовется деаэратором. Делает воду и пар менее агрессивными к трубам, но только до конденсации, конденсат же жрет трубы, стыки, задвижки, крыльчатки насосов, не переборчив в еде
Также есть электрохимическая и кислородная коррозии, и та и другая штуки вредные. Блуждающие токи тоже вредные, но явление редкое, причиной которых вполне может быть близлежащая станция катодной защиты газопровода.
Красивые картинки, только с колосниками не пойму, они ведь размещаются под топливом и над днищем, а тут как понял под колосниками подразумеваются те самые трубы поперек топки, только загрузка топлива под трубами, или может чего не понимаю?